| Fireworks are so numerous and varied that they can be divided into many different categories or classes. Each class has a piece that can be considered the king in the class. Of course, this is a very subjective judgment, but I take this occasion to proclaim my assertion that the king in the class of fountains is indisputably Clark's Giant Steel Fountain. The description of this awesome device first appeared many years ago in "The Chemistry of Powder & Explosives" by Tennyson L. Davis. Many have tried to make an embodiment of this device that lived up to its description, only to fail. Having experienced several such failures myself, this project became a kind of fireworks "holy grail" to me. Diligent pursuit of the goal has finally allowed me to achieve moderate success. I will attempt to allow others the supreme satisfaction of building one, too, by describing my methods of construction. As always, your mileage may vary and satisfaction is not guaranteed. Just remember that my advise is free and you get what you pay for. | 
|  | The original description of this project calls for a paper tube with a 4 inch outside diameter, 2 inch inside diameter and 1 inch thick walls. This is required because of the tremendous pressures that must be withstood by the fountain. Until recently, this kind of paper tube could not be purchased, but you can now get them from Dawntreader Pyrotechnic Specialties. It is made by bonding one tube inside another to achieve the total wall thickness of 1 inch. If you purchase them separately, the outer tube can be reused and the inner tube is discarded after use. This will save you a few bucks if you are a penny pincher like me. Here you see a picture of the tube assembly at the right and the separate inner and outer tubes at the left. | 
|  | An even more thrifty approach can be achieved if you want to go to the effort of rolling your own tube. In the picture is shown a Skylighter tube with a 2 inch inside diameter and 1/8 inch thick walls. This is used as a mandrel over which is rolled a paper tube with a wall thickness of 3/8 inches for a total of 1/2 inches. This assembly is then bonded inside a common 3 inch paper mortar tube with 1/2 inch walls or a Dawntreader outer tube. The inner Skylighter sleeve is not glued in place, but is used as a replaceable liner. This way, your disposable material cost for a fountain is only about two bucks. The problem is that rolling an inner tube this large is no simple task. It must remain very round and uniform to fit perfectly inside the outer tube. I succeeded only after using a lathe to true up a tube wound with 60 pound craft paper and fiberglass resin. | 
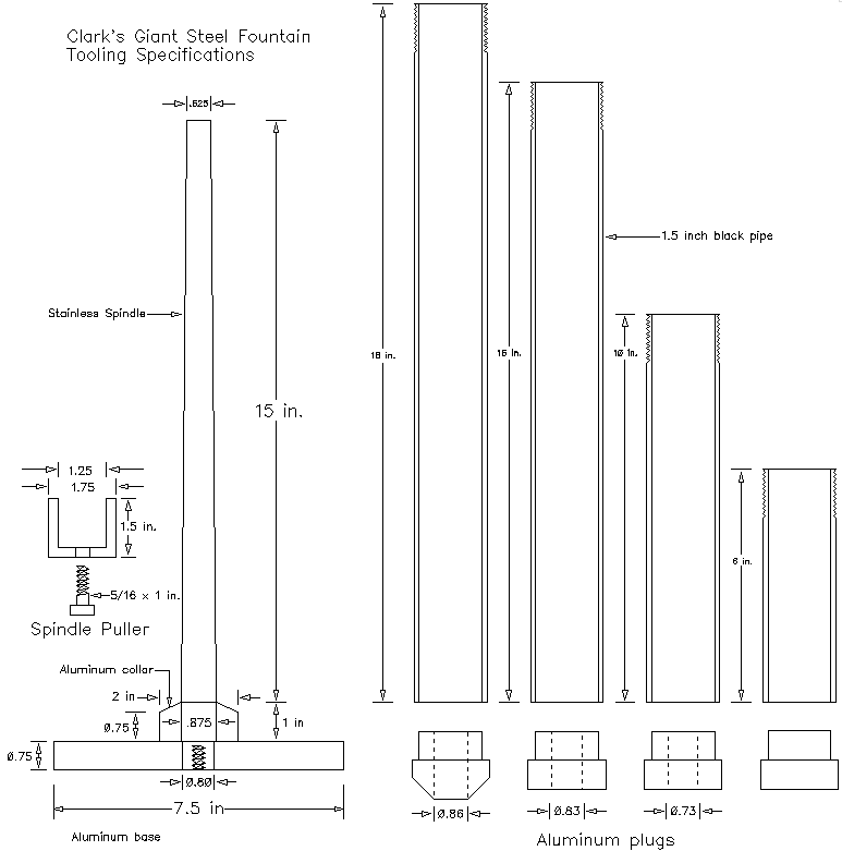
|  | Since this fountain is made by compressing the composition inside the tube, a suitable ram must be made for the job. You can buy a premium quality, custom turned, hardwood ram from Dawntreader for about $50. They also sell an economy version of the wooden ram for about half that much. Then we come to the penny pincher alternative, which I, of course, opted for. The picture shows an eighteen inch length of 1 1/2 inch black pipe with threads at one end only. Hardwood and plastic plugs are made with a lathe for the non threaded end and a t-fitting with a threaded metal plug is used at the other end. The plugs with holes in the middle are for use with the spindle tooling pictured below while the flat bottomed, solid plug is used if you plan to drill out the core with a very big drill bit. | 
|  | If you are fortunate enough to have access to a metal lathe, a spindle such as this one can be made to form the central core of the fountain. It consists of a stainless steel spindle which has an aluminum collar to align the paper tube. This spindle and collar are then mounted to a ramming base of 3/4 inch aluminum plate. The spindle is designed to produce a core length of 12 inches, which is 2 inches longer than the core produced by the drilling procedure described below. A longer core length means more surface area is allowed to burn at once and a higher internal pressure will result. This translates to a higher plume of sparks during operation, but the risk is higher of a nozzle blowout or failure of the tube to contain the extra pressure. A dimensional drawing of this tooling can be found here. The spindle puller is an essential part of this tooling because without it, the extraction of the spindle from the compressed clay and composition is almost impossible. If you belong to the class of poor unfortunates that don't have access to machine tools, then you are left with the equally effective alternative of drilling out the core with a hand drill. The bad news is that you have to shell out $22 for a 7/8 inch by 18 inch long drill bit called the "Naileater" at Home Depot. This method of making the fountain core is described and illustrated below. | 
|  | With the tooling and supplies gathered up, the project is begun by treating your steel filings with boiled linseed oil or paraffin. I purchased Skylighter iron borings (CH8160) and medium iron filings (CH8156) for this purpose. The borings are rather large, thin curls that need to be crushed a little to be usable. I did this with an old meat grinder and then screened out the fines to yield +20 mesh chips. To this is added an equal weight of the medium filings screened for 20 to 40 mesh. This mixture is then coated with the linseed oil and sprinkled thinly on waxed paper to dry. It takes 4 or 5 days to dry, so you need to plan ahead. | 
|  | Mixing the fountain composition is fairly straightforward. If you plan to drill out the core of your fountain with the "Naileater", you will need a batch size of 1400 grams. If you use the spindle tooling, you can get away with a batch of 1050 grams, because the core material is not wasted. For the first case, 1000 grams of potassium nitrate is added to 200 grams of red gum and screened together several times to get an even mixture. Then 200 grams of the treated filings are folded into the mix by stirring. A good sized bucket or bowl with a lid will be needed for this mixing task. A spray bottle is then used to mist the mixture with solvent while stirring to dampen it. The Davis instructions call for a 50% mixture of water and alcohol, but I used pure alcohol to speed the drying time of this fountain. The consequence is that the mixture must be kept in a lidded container prior to and during the ramming stage or it will dry out in the bucket. Dry composition will not compress well and might lead to dangerous voids in the final fuel grain. | 
|  | Ramming the fountain full of explosive composition can be an exhilarating experience if you're young and full of energy. Unfortunately, I'm not so I devised a different solution, but, for the rest of you, manual ramming is a viable method. First, a 1 1/2 inch plug of hardwood is placed in the nozzle end of the tube without any glue. It will be removed later and is only used to recess the nozzle to make room for a drilling guide. The tube is then positioned nose down in a big bucket which is filled with potato sized rocks. This bucket is then placed on a solid concrete floor for the ramming station. Three increments of 100 grams each of bentonite clay are rammed in the tube to form the nozzle, which will occupy three inches of length in the tube. This is done by striking the ram with the biggest sledge hammer you can get your hands on. I used the splitting maul shown in the picture. If you use the metal ram, you must expect that the ramming could cause sparks from the two ferrous metals impacting each other. The safety minded person would make sure no loose composition is on top of the fountain tube, on the floor or anywhere near the ramming station. If the risk gives you the "willies", then you should buy a Dawntreader hardwood ram or consider the method shown below. | 
|  | Not needing to prove my manhood by using the manual ramming practice mentioned above, I decided to modify my rocket press to give it enough vertical clearance to handle the task. Two more 2 foot long threaded rods were used to extend the 3 foot rods used in the original hydraulic press. A single nut seems to be strong enough to handle the forces of the press when used to join the 3/4 inch threaded rods together. Using the rocket press, the process of consolidating the fountain composition in the tube is safer, easier and will give you better compression. This alternative is a clear winner in my book. | 
|  | After the 11 inch column of fountain composition and 3 inch end plug of clay have been rammed or pressed, you can immediately drill out the core with your "naileater" auger bit. If the spindle is used, a 13 inch column of composition is needed and you can, of course, skip the core drilling step. The core is drilled by removing the solid wood plug from the nozzle end and replacing it with one which has a 7/8 inch hole drilled in it to act as a drilling guide. A piece of tape is placed on the drill bit at 14 1/2 inches from the cutting edge at the tip. This marks the hole depth and sets the core length at 10 inches beyond the clay nozzle. The core is drilled with the tube clamped horizontally on the work bench with the nozzle end extending over the edge a few inches. A tray is placed under the nozzle to catch the tailings of composition and nozzle clay as they are drawn out by the auger bit. The drilling is done with a variable speed drill at very low speed to avoid any heat build-up. | 
|  | This fountain will need a healthy fire to get it going. A fuse is made by using a 4 foot length of quick match. The paper tube is removed from an 8 inch length on one end and 18 inches on the other end. Two lengths of bare black match, about 6 inches each, are cut from the long exposed end. These are bundled in parallel with the exposed length of black match that is still attached and tied with string. The three stick bundle is then painted with nitrocellulose lacquer and dusted liberally with 3FA black powder. The bundle end of the fuse assembly is then placed as far down the core as it will go. I like to add a bit of decorative flair by using colorful wrapping paper as a nosing to hold the fuse firmly in place. | 
|  | It is important to provide a secure base for this fountain. This one is built like a Christmas tree stand with two crossed pieces of wood. A short length of PVC is used to firmly clamp the base of the fountain to the stand. The stand has holes in the ends of the cross pieces where tent pegs can be driven through them into the ground to form a very secure anchor for the whole piece. | 
|  | Here is the result of all this effort, prior to lighting the fuse. If you don't want to dress up your creation with party paper, plain craft paper will do the nosing just fine. The finished product is fairly impressive either way by virtue of its size and hefty weight. | 
|  | Here is the result of all this effort, after lighting the fuse. The picture was taken from a distance of 40 feet with no zoom. It manages to fill the field of view with a 60 to 80 foot shower of beautiful golden, branching sparks. It makes a loud, throaty hissing noise like a rocket and is guaranteed to widen the eyes of even the most macho of your friends. | 
Comments and suggestions from visitor feedback:
None yet.
If you have any questions or comments, then.... 
E-mail me!
FastCounter by bCentral